Filiale Bancaria in vendita a Conegliano

Tipologia

Filiale Bancaria

Comune

Conegliano

Indirizzo

Italia 19, 31015

MAP

Valore

870.000,00 €

Superficie

1165 m²

Classe Energetica

F

Descrizione

La proprietà è costituita da un'agenzia bancaria e un ufficio, con pertinenze al piano interrato, e l'intero piano primo di uno stabile a destinazione mista, con unità residenziali all'ultimo livello. L’edificio, realizzato negli anni ’70, è costituito da tre piani fuori terra, con una struttura portante in c.a. e copertura tradizionale in coppi e tegole.

L’unità commerciale ha accesso da viale Italia ed occupa le porzioni di piano terra e di interrato che risultano collegate mediante corpo scala interno. La superficie disponibile al piano terra è di tipo open space, quindi altamente flessibile e personalizzabile; l’organizzazione dello spazio prevede nell’attuale configurazione un ambiente principale per il ricevimento dei clienti e locali secondari di supporto ad uso uffici e servizi. Le finiture interne sono così dettagliate: pavimentazione tradizionale rivestita con piastrelle di gres o ceramica, divisori in muratura o di tipo mobile in laminato o vetro, rivestimento ceramico nei servizi igienici, porte interne in tamburato e serramenti in alluminio con vetro di sicurezza o vetrocamera.
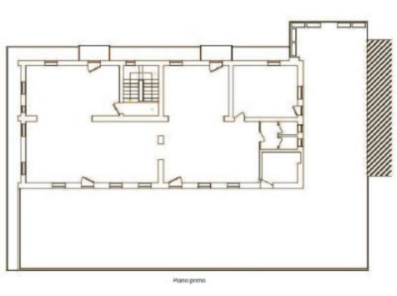
L’ufficio al primo piano è raggiungibile da scala condominiale accessibile da via 28 Aprile ed è formato da un ambiente che occupa la quasi totalità della superficie disponibile e da due locali minori, uno dei quali di servizio, ricavati lungo il lato est del fabbricato. L’unità immobiliare ha in un uso esclusivo la quasi totalità della terrazza di mq. 265 ricavata sulla copertura del piano terra e un ampio magazzino al piano interrato, accessibile dall’esterno dall’area parcheggio antistante l’immobile. Le finiture interne consistono in pavimentazione in linoleum o parquet, soffitti e pareti intonacati al civile, porte in tamburato, serramenti in alluminio con vetrocamera, rivestimento ceramico per il servizio igienico.

Lo stato di manutenzione è omogeneo e discreto per tutte le parti costituenti la proprietà.

L’immobile in oggetto è ubicato nella periferia di Conegliano Veneto. L’affaccio dell’unità avviene in parte sul viale Italia e in parte su via 28 Aprile e l’accesso pedonale avviene da quest’ultima. Il contesto urbano è caratterizzato da immobili pluriplano di tipologie ed età eterogenee (in prevalenza gli immobili sono dell’ultimo cinquantennio), a piano terra sono situate le porzioni commerciali, ai piani superiori uffici ed abitazioni.

L’accessibilità al bene tramite l’utilizzo di mezzi di trasporto pubblici è limitata, al contrario, con mezzi privati, il bene è facilmente raggiungibile.

Italia 19 , 31015 - Conegliano, (Veneto)
Punti di interesse +






Ricerca percorso utile +
Ricerca Percorso Utile
-- km
-- minuti

Evita:

Scopri i semplici passi per fare un'offerta

  • Per scoprire le nostre offerte immobiliare naviga su questo sito
  • Se hai trovato l'immobile che cercavi inviaci una manifestazione di interesse compilando l'apposito modulo scaricabile dal seguente link e inviandolo all’indirizzo mail ottimizzazione.immobiliare@intesasanpaolo.com oppure per avere maggiori informazioni contattaci cliccando qui
  • A seguito di manifestazione di interesse Intesa Sanpaolo potrà a sua discrezione inviarle le password per accedere alla data room informatica e consultare la documentazione tecnica e amministrativa dell'immobile
  • Se vorrai visitare l'immobile ti sarà sufficiente contattarci per prendere un appuntamento
  • Se dopo aver esaminato la Data Room informatica sarai interessato all'acquisto dell'immobile partecipa alla procedura di vendita competitiva, inviandoci un offerta vincolante in busta chiusa, sulla base del modello presente a questo link
  • Se al termine della procedura di vendita risulterai essere il migliore offerente provvederemo a stipulare il preliminare di compravendita, previo versamento del 10% di caparra confirmatoria.

Richiesta di contatto

telefono

+39 02 4127 8889

    Filiale Bancaria in vendita a Conegliano