Appartamento in vendita a Vinadio

Tipologia

Appartamento

Comune

Vinadio

Indirizzo

Roma 11

MAP

Valore

52.000,00 €

Superficie

113 m²

Descrizione

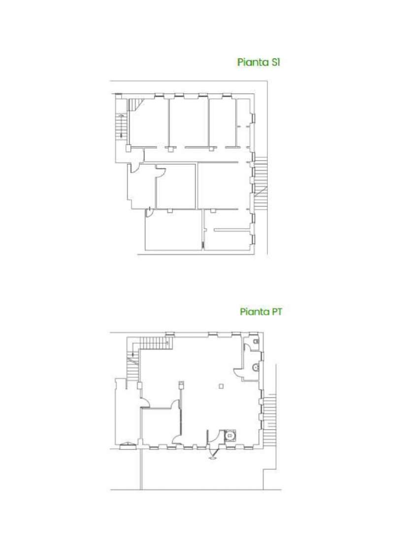
Abitazione sub. 5
La Proprietà si compone di un’unità residenziale posta al piano primo interrato di un edificio a destinazione mista residenziale e direzionale. L’edificio risale agli anni ’70-80 e si sviluppa su 3 piani fuori terra e 2 piani interrati.
Il fabbricato presenta struttura portante di tipo tradizionale in cemento armato, con copertura a doppia falda e tamponamenti esterni in muratura rivestita da pietra naturale al piano terra e intonacata e tinteggiata alternata con porzione di rivestimento in legno ai piani sovrastanti, nonché serramenti in legno e vetrocamera dotati inferriate al piano terra e scuri ai piani superiori.
L’appartamento è raggiungibile attraverso una scala esterna posta sul lato dell’edificio.
Le finiture interne sono caratterizzate da: pavimenti in gres; rivestimenti in ceramica nei servizi; pareti perimetrali intonacate e tinteggiate e in parte con rivestimenti in legno; soffitto intonacato e tinteggiato; tramezzi in muratura. L’immobile necessita di ristrutturazione.

L'immobile, comprese le aree esterne, misura complessivamente 113 mq.

Roma 11 - Vinadio, (Piemonte)
Punti di interesse +






Ricerca percorso utile +
Ricerca Percorso Utile
-- km
-- minuti

Evita:

Scopri i semplici passi per fare un'offerta

  • Per scoprire le nostre offerte immobiliare naviga su questo sito
  • Se hai trovato l'immobile che cercavi inviaci una manifestazione di interesse compilando l'apposito modulo scaricabile dal seguente link e inviandolo all’indirizzo mail ottimizzazione.immobiliare@intesasanpaolo.com oppure per avere maggiori informazioni contattaci cliccando qui
  • A seguito di manifestazione di interesse Intesa Sanpaolo potrà a sua discrezione inviarle le password per accedere alla data room informatica e consultare la documentazione tecnica e amministrativa dell'immobile
  • Se vorrai visitare l'immobile ti sarà sufficiente contattarci per prendere un appuntamento
  • Se dopo aver esaminato la Data Room informatica sarai interessato all'acquisto dell'immobile partecipa alla procedura di vendita competitiva, inviandoci un offerta vincolante in busta chiusa, sulla base del modello presente a questo link
  • Se al termine della procedura di vendita risulterai essere il migliore offerente provvederemo a stipulare il preliminare di compravendita, previo versamento del 10% di caparra confirmatoria.

Richiesta di contatto

telefono

+39 02 4127 8889

    Appartamento in vendita a Vinadio