Filiale Bancaria in vendita a Rovello Porro

Tipologia

Filiale Bancaria

Comune

Rovello Porro

Indirizzo

Piave 22

MAP

Valore

470.000,00 €

Superficie

547 m²

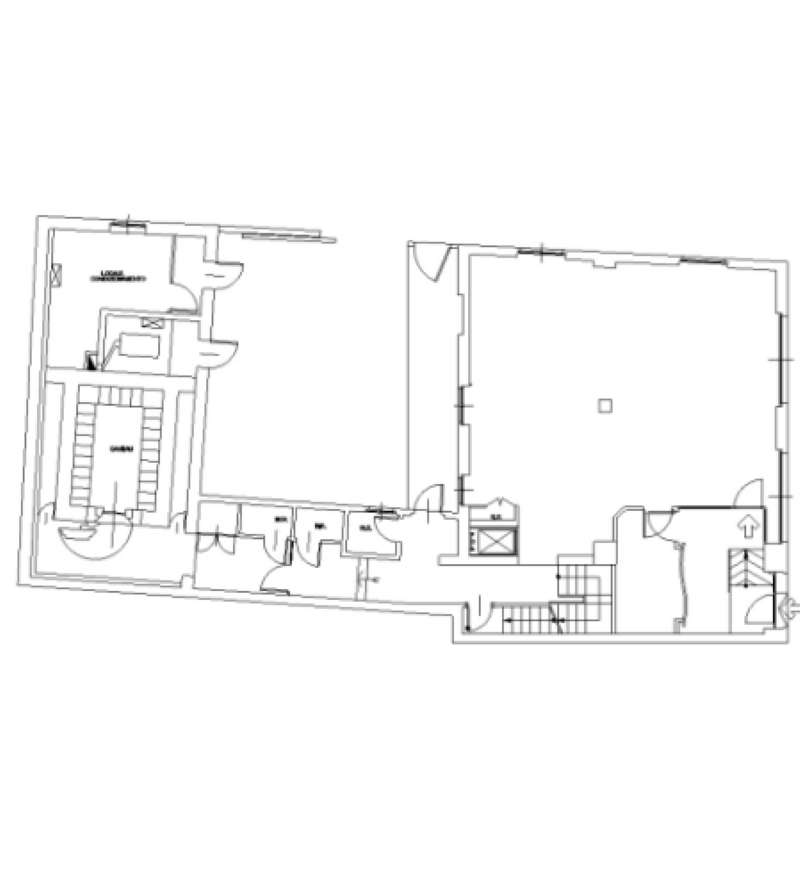
Descrizione

Filiale bancaria mapp. 2720

Il compendio immobiliare è composto da un immobile cielo/terra con destinazione d’uso agenzia bancaria, risalente agli anni ’60, che si sviluppa su 2 piani fuori terra e 1 piano interrato. Il fabbricato presenta struttura portante di tipo tradizionale in cemento armato, con copertura a doppia falda e tamponamenti esterni in muratura rivestita da pietra naturale al piano terra e intonacata e tinteggiata ai piani sovrastanti, serramenti in alluminio rinforzato e vetri antisfondamento al PT.
La filiale bancaria è disposta su tre livelli ripartiti funzionalmente come di seguito: piano terra adibito a sportello bancario con caveau e vani tecnici; il piano primo adibito ad uffici e vani tecnici; il piano interrato ospita un locale archivio. Completa la proprietà un’area esterna scoperta al piano terra.
Il collegamento verticale è garantito da un corpo scala realizzato in c.a. e pietra naturale e da un ascensore che serve il piano terra e il primo piano.
Le finiture interne sono caratterizzate da pavimenti in gres (PT-P1) e ceramica (S1), rivestimenti in ceramica nei servizi, pareti perimetrali intonacate e tinteggiate, soffitto intonacato e tinteggiato al civile con impianti a vista al piano S1, controsoffitto in cartongesso al piano primo e in cartongesso a pannelli al PT, tramezzi realizzati con pareti mobili in legno e vetro.
Lo stato di manutenzione e conservazione generale è buono.

L'immobile, incluse le pertinenze ed aree esterne, misura complessivamente 547mq

Piave 22 - Rovello Porro, (Lombardia)
Punti di interesse +






Ricerca percorso utile +
Ricerca Percorso Utile
-- km
-- minuti

Evita:

Scopri i semplici passi per fare un'offerta

  • Per scoprire le nostre offerte immobiliare naviga su questo sito
  • Se hai trovato l'immobile che cercavi inviaci una manifestazione di interesse compilando l'apposito modulo scaricabile dal seguente link e inviandolo all’indirizzo mail ottimizzazione.immobiliare@intesasanpaolo.com oppure per avere maggiori informazioni contattaci cliccando qui
  • A seguito di manifestazione di interesse Intesa Sanpaolo potrà a sua discrezione inviarle le password per accedere alla data room informatica e consultare la documentazione tecnica e amministrativa dell'immobile
  • Se vorrai visitare l'immobile ti sarà sufficiente contattarci per prendere un appuntamento
  • Se dopo aver esaminato la Data Room informatica sarai interessato all'acquisto dell'immobile partecipa alla procedura di vendita competitiva, inviandoci un offerta vincolante in busta chiusa, sulla base del modello presente a questo link
  • Se al termine della procedura di vendita risulterai essere il migliore offerente provvederemo a stipulare il preliminare di compravendita, previo versamento del 10% di caparra confirmatoria.

Richiesta di contatto

telefono

+39 02 4127 8889

    Filiale Bancaria in vendita a Rovello Porro