Filiale Bancaria in vendita a Montù Beccaria

Tipologia

Filiale Bancaria

Comune

Montù Beccaria

Indirizzo

Umberto I 24

MAP

Valore

210.000,00 €

Superficie

366 m²

Classe Energetica

G

Descrizione

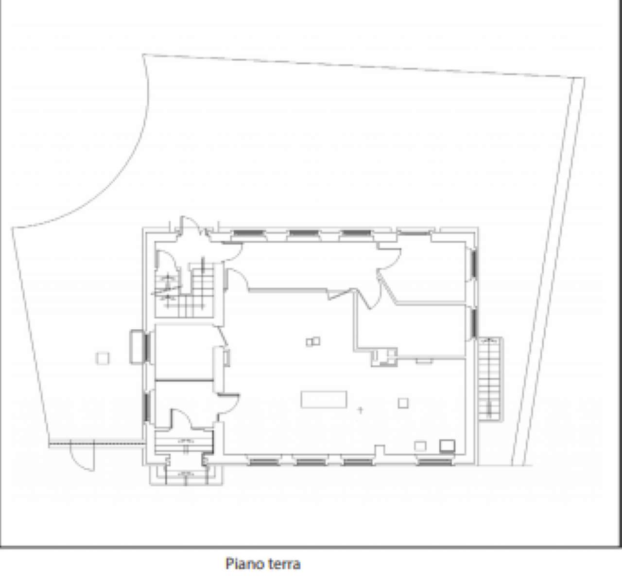
Il compendio immobiliare in oggetto si compone di un immobile cielo/terra precedentemente utilizzato come agenzia bancaria, risalente agli anni ’50 che si sviluppa su 2 piani fuori terra ed uno interrato.
Il fabbricato presenta struttura portante di tipo tradizionale in cemento armato, con copertura a doppia falda e tamponamenti esterni in muratura rivestita da pietra naturale al piano terra e intonacata e tinteggiata al piano sovrastante, nonché serramenti in alluminio rinforzato vetri antisfondamento e grate al piano terra e in legno e vetrocamera ai piani superiori. L’edificio, accessibile da ingresso pedonale posto u Piazza Umberto I, è caratterizzato, al piano terra, da un locale open space e da alcuni uffici singoli realizzate mediante l’utilizzo di pareti in cartongesso, al piano primo da uffici e archivi mentre al piano interrato sono presenti un archivio e la centrale termica. Le finiture interne sono di livello discreto, contraddistinte da: pavimenti misti palladiana di marmo, parquet, granito e linoleum al piano terra; marmette di graniglia al piano primo, rivestimenti in ceramica nei servizi igienici; pareti perimetrali intonacate e tinteggiate; soffitto intonacato e tinteggiato al civile al piano primo; con controsoffitto in doghe metalliche con corpi illuminanti interclusi al Piano terra. Lo stato di manutenzione e conservazione si può ritenere sufficiente.
L’immobile in oggetto è ubicato posizione centrale di Montù Beccaria, Comune italiano di 1.600 abitanti della provincia di Pavia, e più precisamente al civico 24 di Piazza Umberto I. La zona, dove insiste il bene, è caratterizzata quasi esclusivamente da un tessuto urbano di tipo residenziale risalente agli inizi del secolo scorso, con fabbricati di 2-3 piani fuori terra di medio livello qualitativo, e con la presenza, al piano terra, di attività commerciali di vicinato e servizi pubblici. L’accessibilità mediante mezzo privato risulta buona grazie alla presenza della SP 617 bronese in direzione Sp134 per Montù Beccaria che collega Pavia al centro cittadino. L’area è collegata con Stradella da una linea di superficie del trasporto pubblico (n.98), con fermata in Piazza Marconi.

Umberto I 24 - Montù Beccaria, (Lombardia)
Punti di interesse +






Ricerca percorso utile +
Ricerca Percorso Utile
-- km
-- minuti

Evita:

Scopri i semplici passi per fare un'offerta

  • Per scoprire le nostre offerte immobiliare naviga su questo sito
  • Se hai trovato l'immobile che cercavi inviaci una manifestazione di interesse compilando l'apposito modulo scaricabile dal seguente link e inviandolo all’indirizzo mail ottimizzazione.immobiliare@intesasanpaolo.com oppure per avere maggiori informazioni contattaci cliccando qui
  • A seguito di manifestazione di interesse Intesa Sanpaolo potrà a sua discrezione inviarle le password per accedere alla data room informatica e consultare la documentazione tecnica e amministrativa dell'immobile
  • Se vorrai visitare l'immobile ti sarà sufficiente contattarci per prendere un appuntamento
  • Se dopo aver esaminato la Data Room informatica sarai interessato all'acquisto dell'immobile partecipa alla procedura di vendita competitiva, inviandoci un offerta vincolante in busta chiusa, sulla base del modello presente a questo link
  • Se al termine della procedura di vendita risulterai essere il migliore offerente provvederemo a stipulare il preliminare di compravendita, previo versamento del 10% di caparra confirmatoria.

Richiesta di contatto

telefono

+39 02 4127 8889

    Filiale Bancaria in vendita a Montù Beccaria